Woonoppervlakte
Circa 112 m²
Perceeloppervlakte
Circa 111 m²
Bouwjaar
Gebouwd in 1910
Aantal kamers
4 kamers (3 slaapkamers)

Ridderbuurt 23

2771 ZA, Boskoop (Zuid-Holland)

Wil jij wonen in een sfeervolle woning met charmante uitstraling, gelegen aan het water? Dan is deze woning aan de Ridderbuurt 23 echt iets voor jou! Het is onder andere voorzien van een riant souterrain, ruime achtertuin en moderne badkamer. Met een woonoppervlakte van 112 m² en een perceeloppervlakte van 111 m², biedt deze woning volop ruimte voor zowel ontspanning als activiteiten. Tevens is de woning ingericht op de toekomst met zonnepanelen, airconditioning en een warmtepomp, duurzaam en gasloos!

Ook de locatie van de woning is ideaal. Het is gelegen op een unieke plek aan rivier De Gouwe, midden in het centrum van Boskoop! Hierdoor zijn alle benodigde voorzieningen binnen enkele minuten lopen te bereiken. Faciliteiten als scholen, kinderopvangcentra en sportverenigingen liggen op korte afstand en met een eigen treinstation en twee buslijnen is er een goede verbinding met het openbaar vervoer. Ook de uitvalswegen N11, A12 en A20 zijn op korte afstand bereikbaar. Zoek je liever de natuur op? Dan kan je voor een fijne wandeling terecht in het Bentwoud en de Reeuwijkse Plassen.

Indeling:

Begane grond:
Bij binnenkomst merkt u direct de sfeervolle entree op, die u leidt naar het toilet, de meterkast en de trap die u naar de bovenverdieping. Daarnaast beschikt de hal over een ingebouwde garderobekast met spiegel.

De ruime woonkamer is het kloppende hart van deze woning. Hier kunt u, met de sfeer van de houtkachel (ter overname), comfortabel genieten van gezellige avonden. De woonkamer is voorzien van een moderne PVC-vloer, die niet alleen stijl toevoegt, maar ook praktisch is. De aangrenzende serrekamer biedt een prachtig uitzicht over de achtertuin en laat veel natuurlijk licht binnen, ideaal voor een ontspannen ochtend met een kopje koffie of een gezellige middag met vrienden.

De moderne keuken (2021_ is een ware aanwinst voor elke kookliefhebber. U vindt hier een kookplaat met afzuigkap, een combi oven/magnetron, een koelkast, een vaatwasser, een combi stoomoven en zelfs een Quooker, perfect voor het snel bereiden van uw favoriete gerechten. De indeling van de keuken maakt het leuk om samen te koken en in de eetruimte kunt u met het gezin genieten van maaltijden. De keuken biedt tevens toegang tot het souterrain, wat extra praktisch is voor bijvoorbeeld opslag.

1e verdieping
Op de eerste verdieping zijn er drie ruime slaapkamers, perfect voor een gezin of als kantoorruimte. De badkamer is volledig uitgerust met een ligbad, een douche, een wastafel en een tweede toilet, waardoor deze ruimte zeer praktisch is voor dagelijks gebruik.

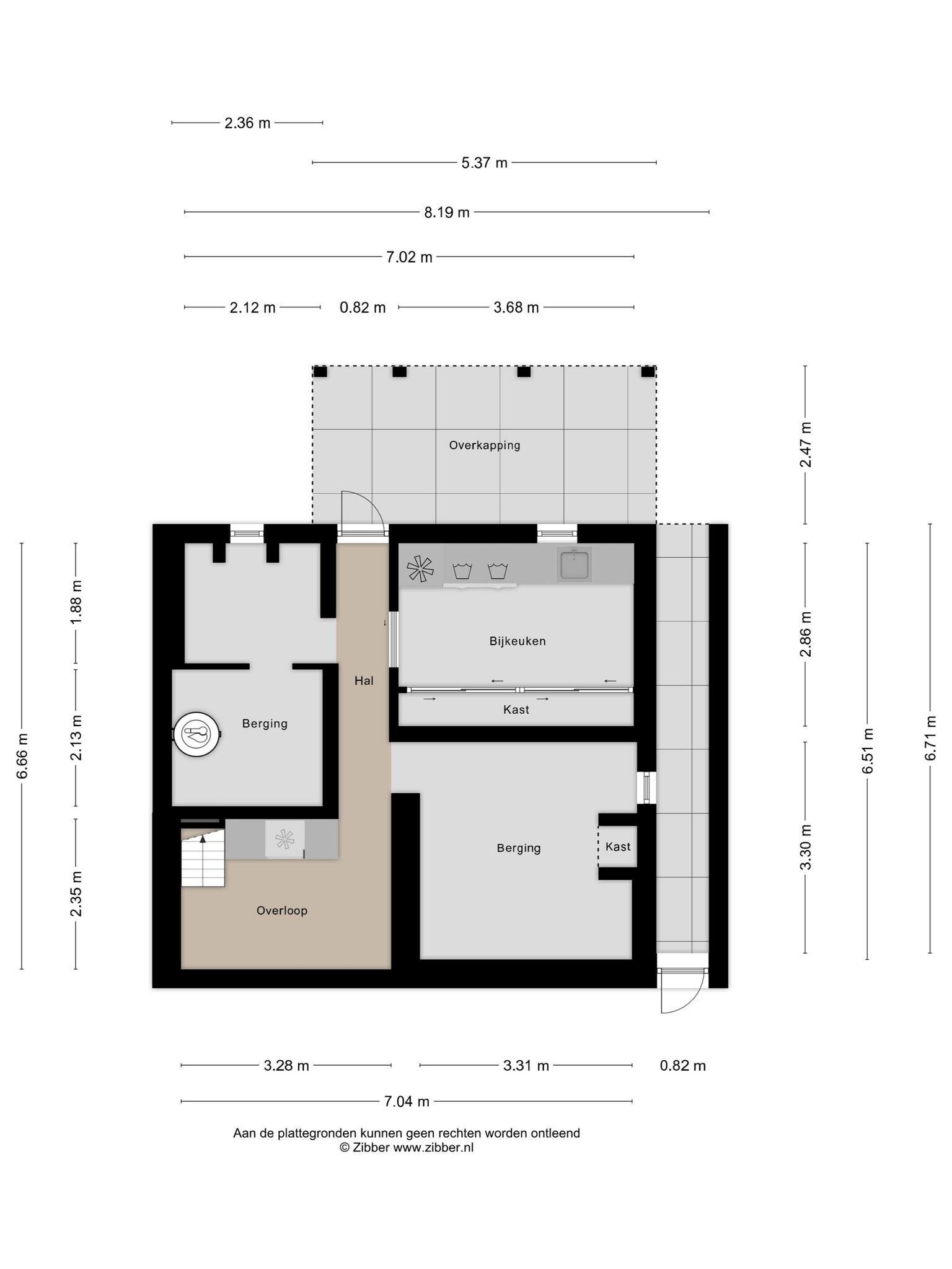
Souterrain
Het souterrain biedt extra ruimte en bevat een bijkeuken met aansluitingen voor een wasmachine en droger, evenals twee bergingen. Een van deze bergingen biedt de opstelplaats voor de warmtepomp, die u zal helpen om energiezuinig te leven.

Buitenruimte
Buiten vindt u een heerlijke beschutte achtertuin, gelegen op het oosten. Dit maakt het de ideale plek voor een zonnig ontbijt of om onder de veranda te genieten van een goed boek. De tuin biedt voldoende ruimte voor de kinderen om te spelen of om gezellig te barbecuen met vrienden en familie. In de ruime voortuin, gelegen op het westen en aan de Gouwe is het in de avond heerlijk genieten wanneer je de zon ziet ondergaan

Bijzonderheden:
- gasloos
- fantastisch uitzicht op De Gouwe
- zonnepanelen
- warmtepomp
- airconditioning
- er is een kruipzolder aanwezig
- screens begane grond voorzijde
- zonwering buiten
- midden in het centrum van Boskoop
- gelegen aan de achterzijde bij de N207

Laat deze unieke kans om een prachtige en duurzame woning in Boskoop te bezitten niet liggen. Neem snel contact op voor een bezichtiging en ervaar zelf de mogelijkheden die Ridderbuurt 23 u te bieden heeft!

Plattegronden

Overdracht

Koopsom
€ 395.000 k.k.
Status
Verkocht
Aanvaarding
In overleg

Bouw

Object type
Eengezinswoning, eindwoning
Soort bouw
Bestaande bouw
Bouwjaar
1910
Soort dak
Zadeldak

Oppervlakte en inhoud

Woonoppervlakte
112 m²
Perceeloppervlakte
111 m²
Inhoud
563 m³
Overige inpandige ruimte
47 m²
Gebouwgeb. buitenruimte
19 m²

Indeling

Aantal kamers
4 kamers (3 slaapkamers)
Aantal badkamers
1 badkamer
Badkamervoorzieningen
Ligbad, toilet, douche, wastafel
Aantal woonlagen
3 woonlagen

Energie

Energielabel
A
Energielabel registratie
26-06-2025
Verwarming
Warmtepomp

Buitenruimte

Ligging
Aan water
Tuin
Achtertuin, voortuin
Afmetingen achtertuin
43 m² (5 meter diep en 8.5 meter breed)
ligging tuin
Gelegen op het oosten

Garage

Soort garage
Geen garage

Energieverbruik in Boskoop

Energielabel deze woning

Energielabel A

Publicatie energielabel: 26-06-2025

Stroomverbruik per jaar

3010 kWh

(Gemiddelde hoekwoning in Boskoop)

Gasverbruik per jaar

1260 m³

(Gemiddelde hoekwoning in Boskoop)

* Cijfers zijn afkomstig van het CBS en bedoeld als indicatie en kunnen verschillen voor deze woning

Indicatie hypotheeklasten

Eigen inleg:
Spaargeld / overwaarde

Rente:
Laagste 10-jaars rente

Laagste 10-jaars rente

2,76% - Centraal Beheer Groen... - NHG


2,98% - Centraal Beheer Groen... - 80%

Laagste 20-jaars rente

3,19% - Centraal Beheer Groen... - NHG


3,31% - Centraal Beheer Groen... - 80%

Laagste 30-jaars rente

3,34% - Centraal Beheer Groen... - NHG


3,47% - Centraal Beheer Groen... - 80%


Hypotheek:

Bruto maandlasten: € 0 p/m

Netto maandlasten: € 0 p/m

Hoe berekenen we dit?

Het rentepercentage is gebaseerd op de laagste 10-jaars vaste rente voor één hypotheekdeel. De vermelde rente (2.76% met NHG) is gecontroleerd op 04-09-2025. Deze berekening is gebaseerd op een annuïteitenhypotheek die volledig wordt afgelost, waarbij de maandlasten gedurende de gehele looptijd gelijk blijven. De werkelijke rente en netto maandlasten kunnen variëren, afhankelijk van uw persoonlijke situatie en de hypotheekverstrekker. Raadpleeg een financieel adviseur voor een nauwkeurige berekening en advies. Aan deze berekening kunnen geen rechten worden ontleend; het dient enkel als indicatie.

Documentatie

Kadastrale kaart

Leefomgeving

Plattegronden PDF

WOZ waarderapport

BAG uittreksel

Aanslagbiljet-gemeentebelastingen-2025

Aanslagbiljet-gouwe-rijnland

Eigendomsbewijs

Lijst van zaken

Bekijk onze website

Zonnegrenzen bekijken

Op de kaart

Inwoners in Boskoop

Cijfers voor postcodegebied 2771

Totaal aantal inwoners
16130 inwoners
Mannen
50%
Vrouwen
50%

Inwoners in Boskoop

Cijfers voor postcodegebied 2771

tot 15 jaar
16%
15 tot 25 jaar
13%
25 tot 35 jaar
24%
45 tot 65 jaar
28%
65 en ouder
20%

Huishoudens in Boskoop

Cijfers voor postcodegebied 2771

Eenpersoons zonder kinderen
33%
Meerpersoons zonder kinderen
32%
Huishoudens zonder kinderen
65%

Huishoudens in Boskoop

Cijfers voor postcodegebied 2771

Huishoudens met één kind
6%
Huishoudens met meerdere kinderen
29%
Huishoudens met kinderen
35%

Woningen in Boskoop

Cijfers voor postcodegebied 2771

Woningen voor 1945
19%
Woningen tussen 1945 en 1965
13%
Woningen tussen 1965 en 1975
20%
Woningen tussen 1975 en 1985
19%
Woningen tussen 1985 en 1995
10%

Woningen in Boskoop

Cijfers voor postcodegebied 2771

Woningen tussen 1995 en 2005
9%
Woningen tussen 2005 en 2015
6%
Woningen na 2015
5%
Huurwoningen
40%
Koopwoningen
60%

Overige in Boskoop

Cijfers voor postcodegebied 2771

Gemiddelde WOZ waarde
€ 263.000,-
Personen onder de 65 met uitkering
5%

Overige in Boskoop

Cijfers voor postcodegebied 2771

Adressen per km²
889
Stedelijkheid (schaal 1 op 5)
40%
Postcode kaart 2771 Gemeente kaart alphen aan den rijn

Korte feiten over Boskoop

Boskoop (uitspraakⓘ) is een plaats in Zuid-Holland, die gelegen is aan (gekanaliseerde) rivier de Gouwe tussen Alphen aan den Rijn en Waddinxveen. Tot 1 januari 2014 was het een zelfstandige gemeente, per die datum is ze opgegaan in de fusiegemeente Alphen aan den Rijn. Op 1 januari 2023 had Boskoop een inwoneraantal van 16.670.

Indien u vragen heeft of u wilt een bezichtiging inplannen, dan kunt u gebruik maken van het formulier hiernaast. Er zal daarna op korte termijn contact met u worden opgenomen.

Euromarkt 3

2408 BA, Alphen aan den Rijn

0172 - 234 406 info@houtmandevogel.nl www.houtmandevogel.nl

Over Houtman & de Vogel

Bent u van plan om uw woning te verkopen? Zoek niet verder! Bij Houtman & de Vogel profiteert u van ervaren makelaars met uitgebreide kennis van de lokale woningmarkt. Ons doel is om de best mogelijke verkoopprijs en voorwaarden voor onze klanten te realiseren. Benieuwd hoe we dat doen? Maak een afspraak en ontdek wat wij voor u kunnen betekenen.

Ons kantoor is gevestigd op de Euromarkt 3 in Alphen aan den Rijn. Het heeft een professionele uitstraling en is voorzien van opvallende tv-schermen in de etalage waar uw woning wordt gepresenteerd. U kunt ons eenvoudig bereiken en er is gratis parkeergelegenheid voor de deur!

Houtman & de Vogel staat bekend om zijn actieve en resultaatgerichte aanpak, gekenmerkt door een no-nonsense mentaliteit. Wij zijn 6 dagen per week en 16 uur per dag bereikbaar. U kunt bij ons terecht voor bezichtigingen of een (gratis) waardebepaling, niet alleen tijdens kantooruren, maar ook in de avonduren en op zaterdag.

Over Houtman & de Vogel
Reviews Houtman & de Vogel Makelaardij

Ridderbuurt 23, Boskoop

€ 395.000 k.k. - Verkocht

Helaas, deze woning is verkocht!

Net te laat, deze woning is al verkocht. Laat een zoekopdracht bij ons achter zodat wij u direct kunnen helpen wanneer er nieuw aanbod beschikbaar komt.